営業時間: 9:00~17:30
定休日: なし(年末年始・お盆を除く)
建物
物件画像
周辺環境
QRコードをスキャンして携帯でもご覧になれます。

-

ライムライト

物件情報更新日
2026年03月10日
マンション
10万4,000円
  • 共益費・管理費:
    6,000円
  • 敷金:
    なし
  • 礼金:
    2ヶ月
福岡県福岡市南区向野1丁目11-1号

西鉄天神大牟田線 高宮駅 徒歩 9分

西鉄天神大牟田線 大橋駅 徒歩 12分

鹿児島本線 竹下駅 徒歩 19分

NEW即入居可おすすめ
間取り
3LDK(3LDK)
所在階
2階
主要採光面
専有面積
65.2㎡(19.72坪)
資料請求お気に入りに追加
お問い合わせ先: 092-431-3933
電話でお問合せする

【駐車場2台契約可】高宮駅徒歩9分!お車2台持ちのご家庭に嬉しい3LDK☆

物件情報
賃料
10万4,000円(税無)
共益費・管理費
6,000円
敷金
なし
礼金
2ヶ月
火災保険
要 2年 16,000円
保証会社名

保証会社:加入要

保証会社利用料:100.0%

契約条件
普通借家権
契約期間
3年
その他費用
町費:250円(税込)
サポート24:1,100円(税込)
費用備考:・防虫消毒費:16,500円(税込) ・退去時清掃代:賃料1ヶ月 ※退去時払い
所在地
福岡県福岡市南区向野1丁目11-1号地図
交通

西鉄天神大牟田線 高宮駅 徒歩 9分

西鉄天神大牟田線 大橋駅 徒歩 12分

鹿児島本線 竹下駅 徒歩 19分

間取り
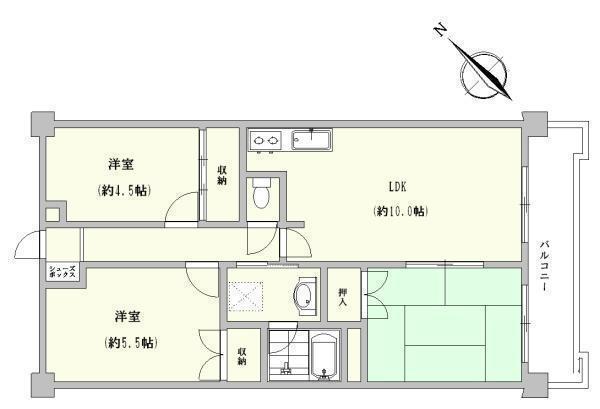
3LDK(3LDK)
建物現況
完成済
部屋
LDK 10.0帖 、和 6.0帖 、洋 5.5帖 、洋 4.5帖
専有面積
65.2㎡(19.72坪)
築年月
1994年03月完成
所在階/建物階建
2階 202 / 6階建
主要採光面
入居可能時期
相談
駐車場
あり 平置 有料 12,000円(税無)
設備・条件
フローリング 給湯 洗面化粧台 シューズボックス タイル貼り オートロック 防犯カメラ エレベーター 敷地内ゴミ置場 駐輪場 バルコニー ベランダ BS受信可 CATV 日当り良好 ガス:都市ガス 汚水:公共下水(使用可) 雑排水:公共下水(使用可) 水道:公営水道(使用可) 洗濯機置場:室内 トイレ:専用、水洗 バス:専用、バス・トイレ別 シャワー:あり ペット:不可 二人入居:可 保証人:要
学区

玉川小学校 約272m

春吉中学校 約491m

備考
オートロック・防犯カメラ完備でセキュリティ面も安心♪ 経済的な都市ガス仕様で、毎月のランニングコストを抑えられるのも嬉しいポイントです♪
物件情報更新日
2026年03月10日(物件情報更新日より14日以内に更新)
物件コード
25122
取引態様
仲介元付(専任)
建物情報
建物名称
ライムライト
建物構造
鉄筋コンクリート造(RC)
建物階建
6階建
資料請求お気に入りに追加
お問い合わせ先: 092-431-3933
電話でお問合せする

地図

空室情報

CENTURY21 みずほ不動産
CENTURY21 みずほ不動産
来店・案内予約はこちら
〒812-0014
福岡県福岡市博多区比恵町1番4号
092-431-3933
営業時間:9:00~17:30 定休日:なし(年末年始・お盆を除く)
外観
その他共有部
エレベーターで荷物が多い日も楽々♪
その他共有部
ゴミ置き場
その他共有部
ポスト
エントランス
エントランス
外観
間取図/区画図
3LDK 駐車場2台契約相談可能です!
洋室
※別部屋写真、現況を優先致します
キッチン
浴室
※別部屋写真、現況を優先致します
トイレ
※別部屋写真、現況を優先致します
洗面室
※別部屋写真、現況を優先致します
収納
※別部屋写真、現況を優先致します
玄関
※別部屋写真、現況を優先致します
その他設備
安心のオートロック付です☆
駐車場
平置き ※サイズ、空き要確認
その他
防犯カメラ
その他
駐輪場(駐輪代無料です!)
和室
※別部屋写真、現況を優先致します
リビング
※別部屋写真、現況を優先致します
洋室
※別部屋写真、現況を優先致します
洋室
※別部屋写真、現況を優先致します
その他共有部
エレベーターで荷物が多い日も楽々♪
その他共有部
ゴミ置き場
その他共有部
ポスト
その他設備
※別部屋写真、現況を優先致します
収納
※別部屋写真、現況を優先致します
収納
※別部屋写真、現況を優先致します
リビング
※別部屋写真、現況を優先致します
エントランス
エントランス
リビング
※別部屋写真、現況を優先致します
リビング
※別部屋写真、現況を優先致します
和室
※別部屋写真、現況を優先致します
リビング
※別部屋写真、現況を優先致します
間取図/区画図
3LDK 駐車場2台契約相談可能です!
外観
洋室
※別部屋写真、現況を優先致します
キッチン
浴室
※別部屋写真、現況を優先致します
トイレ
※別部屋写真、現況を優先致します
洗面室
※別部屋写真、現況を優先致します
収納
※別部屋写真、現況を優先致します
玄関
※別部屋写真、現況を優先致します
その他設備
安心のオートロック付です☆
駐車場
平置き ※サイズ、空き要確認
その他
防犯カメラ
その他
駐輪場(駐輪代無料です!)
和室
※別部屋写真、現況を優先致します
リビング
※別部屋写真、現況を優先致します
洋室
※別部屋写真、現況を優先致します
洋室
※別部屋写真、現況を優先致します
その他共有部
エレベーターで荷物が多い日も楽々♪
その他共有部
ゴミ置き場
その他共有部
ポスト
その他設備
※別部屋写真、現況を優先致します
収納
※別部屋写真、現況を優先致します
収納
※別部屋写真、現況を優先致します
リビング
※別部屋写真、現況を優先致します
エントランス
エントランス
リビング
※別部屋写真、現況を優先致します
リビング
※別部屋写真、現況を優先致します
和室
※別部屋写真、現況を優先致します
リビング
※別部屋写真、現況を優先致します
にしてつストア高宮店(スーパー) 704m
サニー野間店(スーパー) 981m
セブンイレブン福岡向野2丁目店(コンビニ) 458m
ドラッグイレブン清水店(ドラッグストア) 885m
ベスト電器大橋店(ホームセンター) 823m
公立学校共済組合九州中央病院(病院) 584m
福岡清水郵便局(郵便局) 630m
福岡市南区役所(役所) 823m
福岡銀行高宮支店(銀行) 718m
スマートフォン版の表示に切り替える